arcadia.imot.bg Обяви За нас Контакти
Продава ПАРЦЕЛ
град Пловдив, Център
Бунарджика
459 000 €
897 725.97 лв.

(2 068 €, 4 044.66 лв./m2)
Цената е с включено ДДС
История на цената
Публикувана в 13:50 на 20 януари, 2026 год.
Обявата е посетена 117 пъти.
Площ:
222 m2
Регулация:
ДА
Ток:
ДА
Вода:
ДА

Описание на имота:


Оферта - 28131
Предлагаме Ви урегулиран поземлен имот с площ 222 кв.м, разположен на тихо и спокойно място в района на Бунарджика.

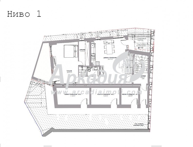
Имотът разполага с одобрен инвестиционен проект и издадено разрешение за строеж за триетажна жилищна сграда с разгъната застроена площ (РЗП) от 347 кв.м, както и три паркоместа.

Разпределение по проект:
Първи етаж:
Просторна дневна с кухненски бокс 35 кв.м, спалня с дрешник, баня с тоалетна.

Втори етаж:
Дневна с кухненски бокс 43 кв.м, две спални, две бани с тоалетни.

Трети етаж:
Дневна с кухненски бокс 33 кв.м, две спални, баня с тоалетна.

Съществува възможност за функционално разделяне на партерния и първия етаж в четири самостоятелни апартамента с площ около 50 кв.м всеки. Това прави имота изключително подходящ както за лично ползване, така и като инвестиция с висока доходност (дългосрочно или краткосрочно отдаване под наем).

Локацията съчетава удобствата на центъра с уюта и спокойствието на нискоетажно жилищно застрояване.
Готов проект и разрешение за строеж възможност за незабавно стартиране на строителство.

За повече информация и огледи:Теодора Берова-Костадинова 0879056458
Вижте още наши предложение на: www.arcadiaimoti.com
Особености
За жил.строителство
За контакт:
0879056458

Този имот се предлага само на частни лица
Агенция:
АРКАДИЯ ИМОТИ
0876/093-009 0879/056-455
АРКАДИЯ ИМОТИ logo
Медал за прослужено време
В imot.bg от 2010 г.
arcadia.imot.bg
Адрес:
област Пловдив, гр. Пловдив, гр. Пловдив ул. Богомил 4
http://www.arcadiaimoti.com
ИЗПРАТИ ЗАПИТВАНЕ
ИЗПРАТИ ЗАПИТВАНЕТО

Продава ПАРЦЕЛ
град Пловдив, Център
Бунарджика
Обява: 1r176890982274852

459 000 €
897 725.97 лв.
История на цената
(2 068 €, 4 044.66 лв./m2)

Цената е с включено ДДС
ЗАПАЗИ ОБЯВАТА

Местоположение: град Пловдив, Център, Бунарджика

Допълнителни данни за имотите в района и сравнение с други райони

Покажи

Период

и 2 месеца

* Средните цени са определени чрез медианна стойност