Обяви За нас Контакти
Продава КЪЩА
област Пазарджик, гр. Септември
165 000 €
322 711.95 лв.

(892 €, 1 744.60 лв./m2)
Не се начислява ДДС
Коригирана в 10:45 на 5 ноември, 2025 год.
Обявата е посетена 2381 пъти.
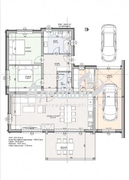
Площ:
185 m2
Двор:
473 m2
Строителство:
Тухла, Въведен в експлоатация 2024 г.

Описание на имота:


ОФЕРТА:25201 Ако желаете да живеете на тихо и спокойно място, както и да посещавате минералните ни басейни в близките курортни градчета? Ако работите от вкъщи, то град Септември е за ВАС!

Това е малък град, но с много добре изградена инфраструктура - разположен на 90км от София и едва 30км от Велинград, на 5км. от минерални бани - Варвара, на 7км. от минерален плаж Белово. На 3 мин пешеходно разстояние от имота - магазин LIDL, училища, детски градини, площадки за деца. Гр. Септември е началната гара на забележителния теснолинеен влак до Велинград, Банско и Добринище, през най-високата гара на Балканите - Аврамово.

Разпределението на къщата е следното: просторна дневна с трапезария и кухненски бокс 40кв.м. с излаз към веранда 19кв.м. и озеленен двор, две спални, баня с тоалетна, отделна тоалетна с перално помещение, килер, топла връзка към Гараж, коридор и подпокривно пространство със стълба.

Степента на завършеност на вътрешността на къщата е шпакловка и замазка, което позволява пълна творческа свобода. Сградата е с АКТ-16. При желание, има възможност за газифициране на имота. Изградено окабеляване за оптичен интернет, телевизия, СОТ и видеонаблюдение. КАНАЛИЗАЦИЯ в парцела!!!

Има възможност за гъвкаво разсрочено плащане, както и с ипотечен кредит. В цената е включена и стойността на парцела.

ЗА ПОВЕЧЕ ИНФОРМАЦИЯ И ОГЛЕДИ ТЕЛ.ЗА КОНТАКТИ 0879056454. ВИЖТЕ ВСИЧКИ НАШИ ОФЕРТИ - WWW.ARCADIAIMOTI.COM
Виж всички обяви в arcadia.bazar.bg или тук
Особености
Тухла
За контакт:
0879056454
Агенция:
АРКАДИЯ
032/39-19-78 0876/093-009 0879/056-455
АРКАДИЯ logo
Медал за прослужено време
В imot.bg от 2010 г.
arcadia.imot.bg
Адрес:
област Пловдив, гр. Пловдив, ГР. ПЛОВДИВ ул. Богомил 4
http://www.arcadiaimoti.com
ИЗПРАТИ ЗАПИТВАНЕ
ИЗПРАТИ ЗАПИТВАНЕТО

Продава КЪЩА
област Пазарджик, гр. Септември
Обява: 1j172051162660147

165 000 €
322 711.95 лв.
(892 €, 1 744.60 лв./m2)

Не се начислява ДДС
ЗАПАЗИ ОБЯВАТА

Местоположение: област Пазарджик, гр. Септември